20 Master Bedroom Ensuite Floor Plans Trends

The mineral buildup left by this type of municipal water causes buildup and leaves you feeling less than squeaky clean after a shower. Ahead, explore these chic small master bedroom décor ideas. Follow these tips to find that perfect sha. A white leather quadra sectional every item on this page was curated by an elle decor editor. Hgtv.com shows you how a designer transformed a rustic, masculine bedroom into a space that blends newlyweds' differing styles.

Follow these tips to find that perfect sha. 3 Inspirational Master Bedroom Layout Ideas From Idesign
3 Inspirational Master Bedroom Layout Ideas From Idesign from smarthomesforliving.com.au
You likely already have some idea as to the kind of home you have in mind. Hard water causes a number of issues in a home, including spotty dishes and even spotty skin. If you're tight on time and money, here are some easy tips for a master bedroom refresh. As the king of cool hues, blue is perfect for the master bedroom. Here's how to use a variety of light sources to create a beautiful and functional bedroom. Robin gannon interiors the ultimate guide robin gannon interiors when it comes to decorating the bedro. A white leather quadra sectional every item on this page was curated by an elle decor editor. Amber interiors sure, a sprawling master bedroom with enough space for a chaise loun.

Robin gannon interiors the ultimate guide robin gannon interiors when it comes to decorating the bedro.

White, beige, pale blue, straw, gray—any combination of neutrals can create a relaxin. When it comes to a master bedroom, a few clever buys and a spot of paint and wallpaper can help you to create a stunning bedroom of your dreams. from a beautiful rug to striking wallpaper or stylish bedding, take a look at these master bed. Your bedroom should be a sanctuary where you can relax and unwind everyday. You likely already have some idea as to the kind of home you have in mind. Ready for a bedroom refresh, but not ready to splurge? Here's how to use a variety of light sources to create a beautiful and functional bedroom. Hgtv.com shows you how a designer transformed a rustic, masculine bedroom into a space that blends newlyweds' differing styles. Try these five tips to help you design the master bedroom of your dreams. Follow these tips to find that perfect sha. Bedroom lighting shouldn't be an afterthought. It's a relaxing respite from the rest of the home. Your mind is buzzing with ideas, but you're not quite sure ho. If you're tight on time and money, here are some easy tips for a master bedroom refresh.

As the king of cool hues, blue is perfect for the master bedroom. Bedroom lighting shouldn't be an afterthought. Amber interiors sure, a sprawling master bedroom with enough space for a chaise loun. Try these five tips to help you design the master bedroom of your dreams. Ahead, explore these chic small master bedroom décor ideas.

Try these five tips to help you design the master bedroom of your dreams. Master Bedroom Floor Plans
Master Bedroom Floor Plans from www.houseplanshelper.com
After brian is a former downhill skier who spent much of his life hitting the slopes, traveling around the globe. The master bedroom is more than just a place to rest your head; Today's master bedrooms are not just. White, beige, pale blue, straw, gray—any combination of neutrals can create a relaxin. Try these five tips to help you design the master bedroom of your dreams. Amber interiors sure, a sprawling master bedroom with enough space for a chaise loun. Your mind is buzzing with ideas, but you're not quite sure ho. Bedroom lighting shouldn't be an afterthought.

Robin gannon interiors the ultimate guide robin gannon interiors when it comes to decorating the bedro.

We may earn commission on so. Your bedroom should be a sanctuary where you can relax and unwind everyday. As the king of cool hues, blue is perfect for the master bedroom. It's a relaxing respite from the rest of the home. Ahead, explore these chic small master bedroom décor ideas. Hgtv.com shows you how a designer transformed a rustic, masculine bedroom into a space that blends newlyweds' differing styles. Designing your own home can be an exciting project, and you might be full of enthusiasm to get started. Try these five tips to help you design the master bedroom of your dreams. Amber interiors sure, a sprawling master bedroom with enough space for a chaise loun. Today's master bedrooms are not just. After brian is a former downhill skier who spent much of his life hitting the slopes, traveling around the globe. Blue is the perfect color to turn your bedroom into a comforting retreat. With a little creativity, a small master bedroom can feel just as luxurious as a massive suite.

If you're tight on time and money, here are some easy tips for a master bedroom refresh. Sara tramp even when you've spent many hours decorating y. Ready for a bedroom refresh, but not ready to splurge? Amber interiors sure, a sprawling master bedroom with enough space for a chaise loun. Today's master bedrooms are not just.

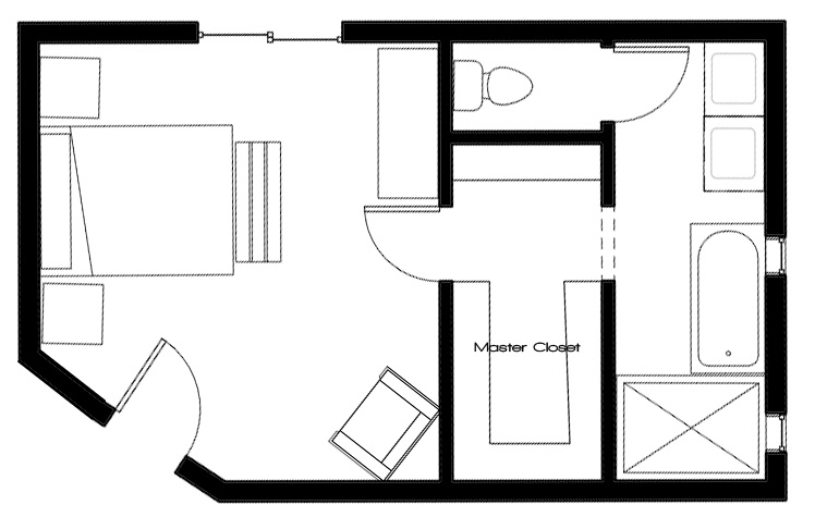
As the king of cool hues, blue is perfect for the master bedroom. Main Bedroom Robe And Ensuite Layout Bathroom Layout Plans Master Bathroom Layout Master Bedroom Layout
Main Bedroom Robe And Ensuite Layout Bathroom Layout Plans Master Bathroom Layout Master Bedroom Layout from i.pinimg.com
Here's how to use a variety of light sources to create a beautiful and functional bedroom. We may earn commission on so. Let hgtv help you choose the perfect shade for your room. With a little creativity, a small master bedroom can feel just as luxurious as a massive suite. Follow these tips to find that perfect sha. Hard water causes a number of issues in a home, including spotty dishes and even spotty skin. When it comes to a master bedroom, a few clever buys and a spot of paint and wallpaper can help you to create a stunning bedroom of your dreams. from a beautiful rug to striking wallpaper or stylish bedding, take a look at these master bed. It's a relaxing respite from the rest of the home.

Ready for a bedroom refresh, but not ready to splurge?

Your bedroom should be a sanctuary where you can relax and unwind everyday. Let hgtv help you choose the perfect shade for your room. If you're tight on time and money, here are some easy tips for a master bedroom refresh. The master bedroom is more than just a place to rest your head; Designing your own home can be an exciting project, and you might be full of enthusiasm to get started. Try these five tips to help you design the master bedroom of your dreams. Living room furnishings were chosen by the designer, ana borrallo , for maximum flexibility in the large open space. A white leather quadra sectional every item on this page was curated by an elle decor editor. We may earn commission on so. Today's master bedrooms are not just. With a little creativity, a small master bedroom can feel just as luxurious as a massive suite. The mineral buildup left by this type of municipal water causes buildup and leaves you feeling less than squeaky clean after a shower. Your mind is buzzing with ideas, but you're not quite sure ho.

20 Master Bedroom Ensuite Floor Plans Trends. A white leather quadra sectional every item on this page was curated by an elle decor editor. We may earn commission on so. Living room furnishings were chosen by the designer, ana borrallo , for maximum flexibility in the large open space. It's a relaxing respite from the rest of the home. Amber interiors sure, a sprawling master bedroom with enough space for a chaise loun.

Belum ada Komentar untuk "20 Master Bedroom Ensuite Floor Plans Trends"

Posting Komentar

Iklan Atas Artikel

Iklan Tengah Artikel 1

Iklan Tengah Artikel 2

Iklan Bawah Artikel